Cuando te enfrentas por primera vez a la decoración de una casa, una de las estancias mas importantes y cuya elección parece más difícil, y lo digo por experiencia, es la cocina.
Cuando compramos mi piso, era de obra nueva y estaba totalmente vacío, me intimidaba el hecho de pensar que esos muebles iban a estar allí "para toda la vida", y eso que en mi caso tenía mas o menos claro el estilo de cocina que quería.
Soy de la opinión de que todas las estancias deben llevar una consonancia en cuanto a estilo, si queremos que nuestra casa desprenda un estilo moderno todas las estancias deberán seguir una linea.
En mi caso quería que mi piso desprendiera un aspecto juvenil, sin ser ultra-moderno, pero que tampoco fuera clásico. También tenía claro que no quería arriesgarme con el color, tal vez un poco intimidada por el pensamiento que he comentado antes de que es una estancia que debe durar muchos años.
Así que me decidí por el blanco, ya que me parece un color que aunque a priori puede parecer aburrido, puedes complementarlo con cualquier otro color sin ningún tipo de restricción. Pero el color no es la única decisión difícil a tomar, hay muchos detalles que debemos elegir, desde la distribución de la cocina, pasando por los electrodomésticos, y hasta el detalle mas pequeño como pueden ser los tiradores.
Y todas esas decisiones condicionadas lógicamente a tu presupuesto, que en mi caso no era muy elevado.Os voy a intentar dar unas pautas para que no os volváis locos con la elección, e intentar haceros el camino un poco mas fácil.

Lo primero de todo es elegir la distribución de la cocina, tomaremos unas medidas aproximadas de la estancia (en nuestro caso mi novio, cogió la distancia de todas las tomas de agua luz, altura de la ventana) esto facilitará mucho la tarea y nos evitará problemas, como darnos cuenta una vez esté hecho el diseño, de que no encaja con la distribución de nuestras tomas de suministros.
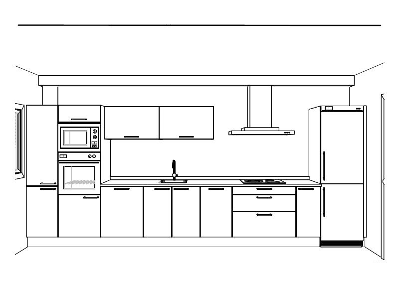
Aunque no tengáis la idea sobre la distribución muy clara, no os preocupéis, ya que cuando lleguéis a la tienda elegida, os harán todos los diseños que queráis. Llegados a este punto, tendréis que tener claros los electrodomésticos que queréis incluir en el diseño. En mi caso fueron, lavadora, horno, microondas, vitroceramica, campana vista, lavavajillas y nevera.
La verdad que conmigo acertaron a la primera, yo ya iba con una idea interiorizada, tenia claro que no quería que los muebles llegaran hasta el techo, y que la campana la quería vista. También que quería una torre de manera que el micro quedara encima del horno.
Una vez elegido el diseño, llega la hora de elegir el tipo de puertas y frentes y, el color. Hay muchos tipos de puertas, lisas con hendiduras, mates con brillo.... Un abanico de calidades y precios tan amplio, que puedes tirarte días mirando catálogos, pero yo creo que todos mas o menos vamos con una idea predefinida.
Como ya he comentado, yo las quería blancas, y mas por precio que por otra cosa, decidí ponerlas lisas. Pero me permití el capricho de que el canto fuera metalizado.
Me hubiese gustado que las puertas tuvieran integrado el tirador, pero subía mucho el precio.
La siguiente elección es la encimera, al igual que con las puertas la variedad de colores y materiales es abrumadora.
Yo me decidí por una encimera de silestone en color gris, ya que me parece un material muy fuerte y duradero (otra vez influenciada por la frase "para toda la vida") Una de las últimas elecciones que debemos hacer es la marca de los electrodomésticos, pero eso es tan difícil que tendría que hacer otro post dedicado en exclusiva a este tema. Una vez hemos hecho todas estas elecciones y aceptado el presupuesto, un técnico se pasará por nuestra casa a tomar las medidas definitivas, y en un plazo de aproximadamente un mes, que a mi se me hizo eterno, vendrán a instalarnos todos los muebles y electrodomésticos. Y ya tendremos nuestra cocina!!>